![]()  | 
| 旧宝塚ホテル西館(2021年8月撮影) | 
阪急宝塚南口駅前の旧宝塚ホテルの解体工事が進んでいます。
旧本館の建物の解体は既に終わり、現在は旧西館の解体工事中です。
その西館の解体工事も9月末には終了しそうです。
![]()  | 
| 旧宝塚ホテル(2020年8月撮影) | 
この写真は2020年8月、ほぼ同じ角度から撮影したものです。
![]()  | 
| 旧宝塚ホテル跡地(2021年8月撮影) | 
![]()  | 
| 旧宝塚ホテル跡地(2021年8月撮影) | 
旧宝塚ホテルの正面玄関付近です。
旧本館は跡形もなくなり、旧西館が見えるようになっています。
![]()  | 
| 旧宝塚ホテル(2020年8月撮影) | 
2020年8月に、ほぼ同じ角度から撮影した写真です。
90年以上の歴史を誇る旧本館は、今見ても美しいです。
モダニズム建築が美しい旧宝塚ホテル。
1926年(大正15年)に建てられ、90年以上にわたり宝塚のシンボルとして多くの宿泊客を迎えてきました。
しかし、今ではもうその美しい姿は見ることができません。
そして今度、宝塚南口駅前に超高層マンションが誕生します。
旧宝塚ホテルの跡地に建つのは32階建の超高層マンション
解体工事の柵には、旧宝塚ホテル跡地の開発構想のお知らせが掲示されていました。
旧宝塚ホテルの跡地には、地上32階建ての超高層マンションが建つ予定です。
![]()  | 
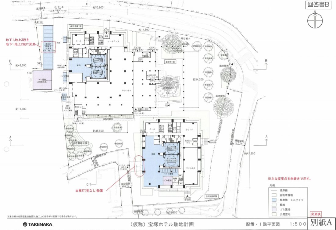
| (仮称)宝塚ホテル跡地計画 | 
![]()  | 
| (仮称)宝塚ホテル跡地計画 立面図1 | 
![]()  | 
| (仮称)宝塚ホテル跡地計画 立面図2 | 
![]()  | 
| 宝塚ホテル跡地マンション 1階平面図 | 
![]()  | 
| 宝塚ホテル跡地マンション 6~15階平面図 | 
北棟と南棟の2棟からなり、住戸数は650戸。
地上32階、約107メートルの超高層マンションです。
1戸当たりの専有面積は約70㎡となっています。
商業施設のテナントの入居予定は現在未定ですが、北棟の2階には保育施設が入る予定です。
ちなみにこのマンションの小学校の校区は、宝塚第一小学校になります。
当マンションの詳細については、宝塚市のホームページをご覧ください。
⇒阪急宝塚駅前に新しくマンションが建つようです
takarazukatownjournal.blogspot.com
⇒旧宝塚ホテル跡地マンションの価格を一足早く予想してみました
takarazukatownjournal.blogspot.com
旧宝塚ホテル跡地のマンションの所在地は?
旧宝塚ホテル跡地の開発計画のまとめ
今回は旧宝塚ホテル跡地の開発計画について調べてみました。
ちょうど線路を挟んだ対角線上には、「ザ・宝塚タワー」という地上28階建て230戸の高層マンションがあります。
また武庫川を渡った宝塚音楽学校の隣には、「ファミール宝塚グランスイートタワー」という32階建て177戸のマンションがあります。
今回ご紹介した旧宝塚ホテル跡地の超高層マンションは、地上32階、650戸ということで、宝塚南口駅前地域で最大規模のマンションになります。
商業施設のテナントは未定ですが、地域が活気づくようなテナントを誘致して頂けると嬉しいですね。
takarazukatownjournal.blogspot.com
旧宝塚ホテル跡地の開発計画
開発構想の名称
(仮称) 宝塚ホテル跡地計画
開発事業区域の位置
宝塚市梅野町65番1の一部
開開発事業区域の面積
10,539.58㎡²
予定される建築物
用途:共同住宅・店舗
住戸数: 約650戸
階数:地上32階
高さ:約107メートル
着工予定時期
2022年4月上旬
開発事業者














0 コメント